株式会社MYホーム収益物件エール福本 一棟売マンション

PROPERTY DETAILS

物件詳細

マンション

エール福本 一棟売マンション

【リノベーション履歴】
2021年3月
全室フルリノベーション済み
※実施年月は最も古い履歴を表示

【アピールポイント】
オーナーチェンジ物件
現況満室稼働中につき、安定した賃料収入が見込めます。
お気軽にお問い合わせください。

価格

12,000万円 (税込)

所在地

〒600-8320
京都市下京区西洞院通七条上る福本町

建物面積

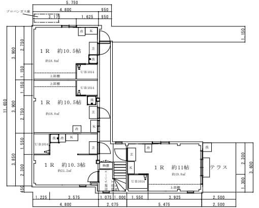
242.79㎡

アクセス

JR東海道本線「京都」駅徒歩8分
地下鉄烏丸線「京都」駅徒歩9分

物件基本情報

所在地

〒600-8320 京都市下京区西洞院通七条上る福本町

アクセス

JR東海道本線「京都」駅徒歩8分
地下鉄烏丸線「京都」駅徒歩9分

価格

12,000万円

土地面積

143.37㎡

土地権利

所有権

地目

宅地

地勢

平坦

位置指定道路の有無

接道状況

一方 北側公道約3.5mに接面約5.8m

構造

鉄骨造

階数/階建

地上3階建て

建物面積

242.79㎡

築年月

1988年11月

用途地域

近隣商業地域

建ぺい率

80%

容積率

240%

現状

賃貸中

引渡時期

相談

取引態様

一般媒介

情報更新日

2026/04/03

備考

インターネット対応

設備

電気・水道・ガス

プロパンガス(LPガス)、

バス・トイレ

洗濯機置場(室内)、

設備・機能

給湯、

地図

※ピンの位置は目安となっております。詳しい位置はお問い合わせください。

ローンシュミレーション

物件お問い合わせ

ご用件

物件名


 

お問い合わせ内容