株式会社MYホーム売買物件【中古一戸建】京田辺市 田辺尼ケ池(京田辺駅) 2階建

PROPERTY DETAILS

物件詳細

中古戸建
リフォーム済み

【中古一戸建】京田辺市 田辺尼ケ池(京田辺駅) 2階建

≪当物件おすすめポイント≫
安心も二重なダブルロックドア採用、
更に台風にも強くプライバシーも守れる
シャッター雨戸採用だから、台風や強風時
に窓ガラスを守ってくれます。

価格

3,610万円

所在地

〒610-0331
京田辺市田辺尼ケ池

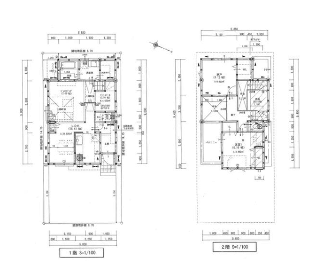
建物面積

158.97㎡

アクセス

JR片町線「京田辺」駅徒歩12分
近鉄京都線「新田辺」駅徒歩16分
JR片町線「大住」駅徒歩27分

物件基本情報

所在地

〒610-0331 京田辺市田辺尼ケ池

アクセス

JR片町線「京田辺」駅徒歩12分
近鉄京都線「新田辺」駅徒歩16分
JR片町線「大住」駅徒歩27分

価格

3,610万円

土地面積

200.26㎡

土地権利

所有権

地目

宅地

地勢

平坦

位置指定道路の有無

接道状況

東側公道約6.0m接面約12.1m

構造

木造

階数/階建

2階建

建物面積

158.97㎡

駐車場

築年月

2023年4月

用途地域

第1種低層住居専用地域

建ぺい率

60%

容積率

100%

現状

居住中

引渡時期

相談

取引態様

専属専任媒介

情報更新日

2026/02/06

備考

主要採光面:西向き
ディンプルキー、二世帯向き、バス1坪以上、
24時間換気システム、吹抜、閑静な住宅街、
区画整理地内、分譲地内

設備

電気・水道・ガス

都市ガス、公営水道、汚水-本下水、

バス・トイレ

追焚機能、温水洗浄便座、浴室乾燥機(暖房乾燥)、洗面ドレッサー、

キッチン

システムキッチン、3口ガスコンロ、

収納

ウォークインクローゼット、

設備・機能

給湯、

セキュリティ

モニター付インターホン、

庭・バルコニー

バルコニー、

周辺環境について

アル・プラザ京田辺まで約1105m(徒歩約14分)

ファミリーマート京田辺公園店まで約568m(徒歩約8分)

私立同志社女子大学まで約1985m(徒歩約25分)

京都府立田辺高校まで約1820m(徒歩約23分)

JA京都やましろ京田辺支店まで約749m(徒歩約10分)

京田辺市役所まで約807m(徒歩約11分)

地図

※ピンの位置は目安となっております。詳しい位置はお問い合わせください。

ローンシュミレーション

物件お問い合わせ

ご用件

物件名


 

お問い合わせ内容