【中古一戸建】伏見区久我森の宮町(西向日駅) 2階建 4LDK
【アピールポイント♪】
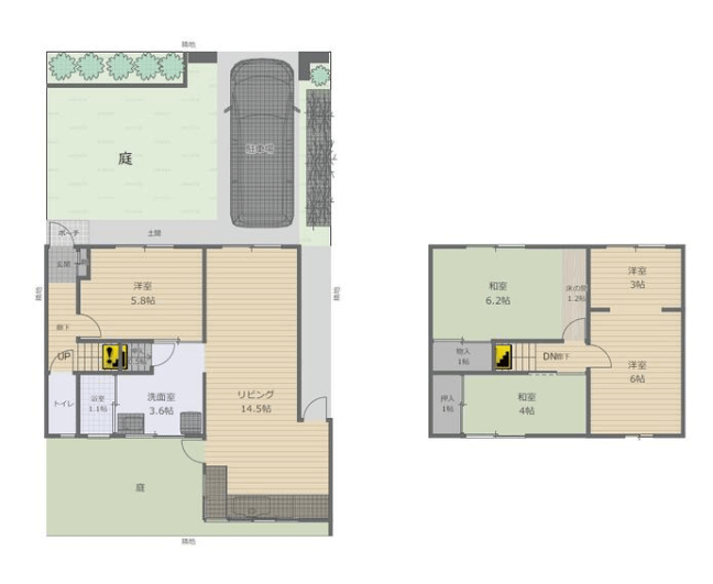
◆南側と北側、2箇所お庭があり、用途を分けて便利にお使いいただけます。
南側のお庭は日当たりが良く、洗濯物やお布団干し、ガーデニングや家庭菜園
ができます。
北側のお庭は勝手口から出入り可能で、リビングを通らずにゴミを一時保管でき、
実用的なスペースとしてお役立ていただけます。
◆リビングは南北に開口部があり、明るく風通しの良い空間です。
◆玄関近くに洋室があり、来客対応にもご活用いただけます。
◆1帖の押入れを2箇所に配置し、収納力のある住まいです。
◆洗面室は3.6帖の広さがあり、身支度や洗濯もゆったり行えます。
◆駐車スペース1台あります。
-
価格
-
1,180万円
-
所在地
-
〒612-8495
京都市伏見区久我森の宮町 -
間取り
-
4LDK
-
建物面積
-
84.45㎡
-
アクセス
-
阪急京都線「西向日」駅徒歩42分
地下鉄烏丸線「竹田」駅【バス】乗車19分 市バス「神川小学校前」停徒歩2分
物件基本情報
-
所在地
-
〒612-8495 京都市伏見区久我森の宮町
-
アクセス
-
阪急京都線「西向日」駅徒歩42分
地下鉄烏丸線「竹田」駅【バス】乗車19分 市バス「神川小学校前」停徒歩2分
-
価格
-
1,180万円
-
土地面積
-
113.17㎡
-
土地権利
-
所有権
-
地目
-
宅地
-
地勢
-
平坦
-
位置指定道路の有無
-
無
-
接道状況
-
南側公道約6.0mに接面約8.0m
-
構造
-
木造
-
階数/階建
-
2階建
-
間取り
-
4LDK
-
建物面積
-
84.45㎡
-
駐車場
-
有(1台)
-
築年月
-
1968年8月
-
用途地域
-
第1種中高層住居専用地域
-
建ぺい率
-
60%
-
容積率
-
200%
-
現状
-
居住中
-
引渡時期
-
相談
-
取引態様
-
一般媒介
-
情報更新日
-
2026/02/20
-
備考
-
浴室に窓あり、Ⅱ型キッチン
主要採光面:南向き
20m第1種高度地区、防火・準防火地域(法22条区域)、
景観保全(町並み型建造物修景地区)、
眺望景観(遠景デザイン保全区域(11)、遠景デザイン保全区域(49))、
屋外広告物(第3種地域)、近郊整備区域、宅地造成等工事規制区域
設備
-
電気・水道・ガス
-
電気、都市ガス、公営水道、汚水-本下水、
地図
※ピンの位置は目安となっております。詳しい位置はお問い合わせください。